Przestronne mieszkanie 4-pokojowe – Bielsk Podlaski, Centrum.

Bielsk Podlaski , Centrum, pokoi: 4, cena: 399 000, symbol: 1240/JZC/MS

 
 
 
 
 
notatnik Dodaj do notesu drukuj ofertę Drukuj (PDF) powiadom przyjaciela o ofercie Wyślij znajomemu obserwuj ofertę Obserwuj Udostępnijoblicz opłaty Oblicz opłaty

opis nieruchomości

Na sprzedaż: przestronne mieszkanie 4-pokojowe – Bielsk Podlaski, ul. Mickiewicza 55

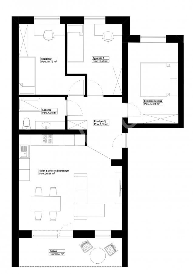
Na sprzedaż oferujemy dwustronne mieszkanie o powierzchni 73 m², zlokalizowane w spokojnej i zielonej części Bielska Podlaskiego, przy ul. Mickiewicza 55.

Opis nieruchomości:

  • Powierzchnia mieszkania: 73 m²
  • Liczba pokoi: 4 (doskonałe dla rodziny lub inwestycji pod wynajem - można podzielić na 2 mniejsze)
  • Piętro: 1 z 2 (brak windy)
  • Balkon: Tak
  • Łazienka: Oddzielna łazienka.
  • Kuchnia: aneks z możliwością wydzielenia niezależnej.
  • Stan mieszkania: do remontu – idealne do własnej aranżacji.

Dodatkowe atuty:

  • Komórka lokatorska: ok. 10 m² – bardzo obszerna, idealna na rowery, wózki lub przechowywanie
  • Media:
    • Wymienione instalacje: wodno-kanalizacyjna, elektryczna oraz centralne ogrzewanie (wraz z grzejnikami)
    • Domofon, TV i internet w mieszkaniu.
  • Teren zamknięty: Bezpieczny dostęp tylko dla mieszkańców
  • Parking: Ogólnodostępny na zamkniętym podwórzu

Lokalizacja:

Nieruchomość znajduje się w atrakcyjnej części miasta, w pobliżu sklepów, szkół, przystanków komunikacji miejskiej oraz terenów rekreacyjnych. Cicha okolica zapewnia komfort mieszkania przy jednoczesnym dostępie do pełnej infrastruktury miejskiej.


Cena do negocjacji.

Zapraszamy do kontaktu w celu uzyskania dodatkowych informacji lub umówienia się na prezentację mieszkania.

Bez prowizji i PCC!

???? Kontakt: 736 314 943
 

 

Treść niniejszego ogłoszenia nie stanowi oferty handlowej w rozumieniu Kodeksu Cywilnego. Treść ma charakter informacyjny i zalecamy ich osobistą weryfikację. Kontaktując się z biurem Klient wyraża zgodę na przetwarzanie danych osobowych zgodnie z przepisami ustawy z dnia 29 sierpnia 1997 roku o ochronie danych osobowych / Dz.U.Nr. 133 poz. 883/. Klientowi przysługuje prawo do wglądu do swoich danych osobowych i ich aktualizacji.

galeria zdjęć

szczegóły oferty

Symbol1240/JZC/MS Rodzaj nieruchomościMIESZKANIE
Rodzaj transakcjiSPRZEDAŻ Rodzaj rynkuWTÓRNY
Cena cena w innych walutach 399 000,00 PLNKrajPOLSKA
Województwopodlaskie MiejscowośćBielsk Podlaski
Dzielnica - osiedleCentrum UlicaAdama Mickiewicza
Nr domu55 Nr lokalu2
Nr działki1568/16 Obręb geodezyjny0003
Powierzchnia całkowita73,00 m²Kształt działkiPROSTOKĄT
Powierzchnia użytkowa73,00 m²Rodzaj mieszkania4-POKOJOWE
Rodzaj budynkuNISKI WIELORODZINNY Rok budowy1990
StandardDO REMONTU Stan budynkuPO REMONCIE
Typ kuchniANEKS KUCHENNY Powierzchnie kuchni15 m²
Wyposażenie kuchniBRAK Liczba łazienek1
Powierzchnie łazienek4,5 m²Stan łazienkiDO REMONTU
Wyposażenie łazienkiBRAK Liczba pokoi4
Liczba sypialni3 Piętro1
Ilość pięter3 Ilość poziomów1
Wysokość kondygnacji [m]2,60 cmUmeblowanieBRAK
Źródło c.w.SIEĆ MIEJSKA OgrzewanieC.O. Z SIECI MIEJSKIEJ
Dostępne sieciinternet Forma własnościPEŁNA WŁASNOŚĆ
Rodzaj kanalizacjiMIEJSKA Źródło wodyWODA MIEJSKA
LodówkaNIE MA PralkaNIE MA
PiekarnikNIE MA ZmywarkaNIE MA
Kuchnia gazowaNIE MA Kuchnia elektrycznaNIE MA
Kuchnia indukcyjnaNIE MA Rodzaj okienPLASTIKOWE
Pokrycie dachuBLACHODACHÓWKA PoddaszeNIEUŻYTKOWE
Rodzaj podłogiSZLICHTA ElewacjaTYNK SILIKONOWY
OgrodzeniePEŁNE Czy jest KWJEST
Parking strzeżonyJEST GarażNIE MA
Typ parkinguUTWARDZONY Pomieszczenie gospodarczeJEST
BalkonJEST Ilość balkonów1
Powierzchnie balkonów8,5 m²Widok na południeJEST
Widok na wschódJEST Widok na zachódJEST
Nr Licencji19016 Komórka lokatorskaJEST
Rozkład mieszkaniaDWUSTRONNE Kuchenka mikrofalowaNIE MA
Osobne WCNIE MA Czynsz administracyjny590,00 PLN

wyszukaj podobne oferty

Skontaktuj się z nami!
Biuro Jazz House

Biuro Jazz House

736314943

Notatnik

Aktualnie w notesie nie znajduje się żadna oferta.

Newsletter

podaj swój adres email, aby otrzymywać informacje o nowych ofertach