Zielonka - Segment - PROMOCJA GRUDNIOWA

Zielonka, Zielonka, pokoi: 4, symbol: 307/JZC/DS

 
 
 

opis nieruchomości

Oferujemy Państwu segment skrajny na sprzedaż w promocyjnej cenie do końca grudnia. Nieruchomość położona jest w Zielonce, przy ulicy Bartnika.
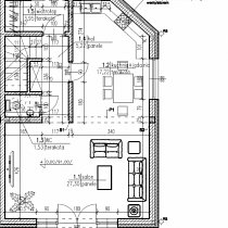
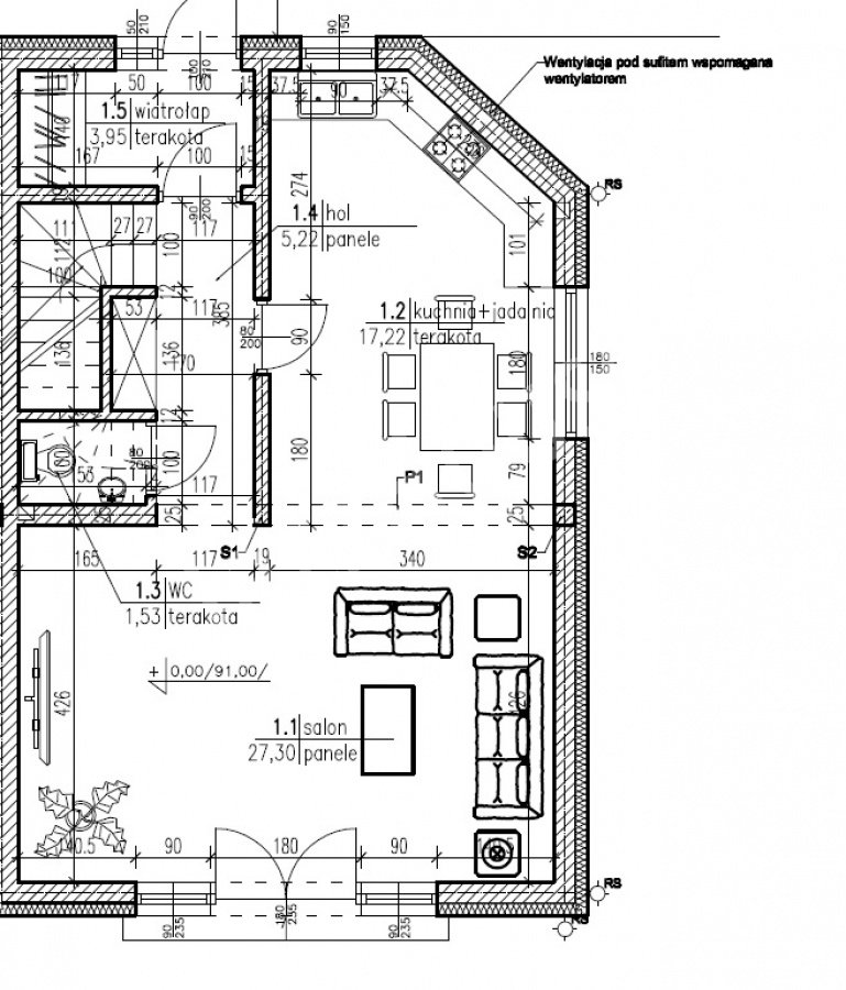
Powierzchnia nieruchomości wynosi 174 m2.
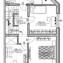
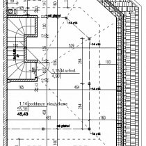
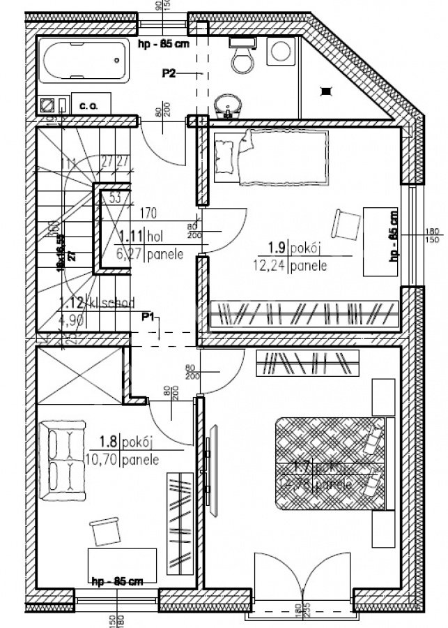
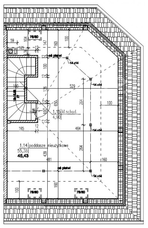
Dom posiada 4 pokoje w tym 3 sypialnie ,salon i dodatkowo możliwość zrobienia na poddaszu kolejnych 3 pokoi
Dodatkowo w skład pomieszczeń wchodzą: kuchnia z jadalnią oraz łazienka i oddzielne wc.
Do nieruchomości przynależy miejsce postojowe i ogródek.
Budynek 1 piętrowy z poddaszem. 

Oferowana nieruchomość ogrzewana jest: c.o. gazowe. Okna wychodzące na północ południe wschód zachód.
Standard wykończenia: deweloperski. Rodzaj elewacji: tynk silikonowy. Rodzaj podłogi: szlichta. Rodzaj okien: plastikowe.
OFERTA BEZPOŚREDNIO OD DEWELOPERA
BRAK PROWIZJI I PCC


Zapraszamy na prezentację.

Treść niniejszego ogłoszenia nie stanowi oferty handlowej w rozumieniu Kodeksu Cywilnego. Treść ma charakter informacyjny i zalecamy ich osobistą weryfikację. Kontaktując się z biurem Klient wyraża zgodę na przetwarzanie danych osobowych zgodnie z przepisami ustawy z dnia 29 sierpnia 1997 roku o ochronie danych osobowych / Dz.U.Nr. 133 poz. 883/. Klientowi przysługuje prawo do wglądu do swoich danych osobowych i ich aktualizacji.

galeria zdjęć

plany nieruchomości

szczegóły oferty

notatnik Dodaj do notesu drukuj ofertę Drukuj (PDF) powiadom przyjaciela o ofercie Wyślij znajomemu obserwuj ofertę Obserwuj Udostępnij
Symbol307/JZC/DS Rodzaj nieruchomościDOM
Rodzaj transakcjiSPRZEDAŻ Statusoferta aktualna
Rodzaj rynkuPIERWOTNY Nieruchomość dostępna od01.11.2024
KrajPOLSKA WojewództwoMAZOWIECKIE
PowiatWołomin GminaZielonka
MiejscowośćZielonka Kod pocztowy05-220
Dzielnica - osiedleZielonka UlicaBartnika
Położenie działkiTEREN PŁASKI PołożenieMIASTO
Budynki w sąsiedztwieOSIEDLE DOMÓW WIELORODZINNYCH, WOLNOSTOJĄCE DOMY JEDNORODZINNE Powierzchnia całkowita174,84 m²
Powierzchnia działki150,00 m²Powierzchnia użytkowa114,56 m²
Forma własności działkiWŁASNOŚĆ Udział w działceUDZIAŁ
Rodzaj domuPÓŁ BLIŹNIAKA PrzeznaczenieMIESZKALNE
Rodzaj budynkuDOM StandardDEWELOPERSKI
Stan budynkuBARDZO DOBRY Konstrukcja budynkuTRADYCYJNA
Materiał ścianCEGŁA CERAMICZNA Rodzaj stropuWYLEWANY
Technika budowyTRADYCYJNA Typ kuchniZ OKNEM
Powierzchnie kuchni19,00 m²Liczba łazienek1
Powierzchnie łazienek6,75 m2 m²Liczba WC1
Powierzchnie WC1,53 m2 m²Droga dojazdowaCICHA ULICA
Rodzaj nawierzchniASFALTOWA - KOSTKA Liczba pokoi4
Powierzchnie pokoi28 m2; 12,86 m2; 12,91 m2; 12,99 m2 m²Liczba sypialni5
Ilość pięter1 Wysokość kondygnacji [m]270,00 cm
Źródło c.w.GAZOWY 2-OBIEGOWY OgrzewanieC.O. GAZOWE
Stan instalacjiNOWA Forma własnościODRĘBNA WŁASNOŚĆ
Rodzaj kanalizacjiMIEJSKA Źródło wodyWODA MIEJSKA
Drzwi antywłamanioweJEST DomofonJEST
Rodzaj okienPLASTIKOWE Pokrycie dachuBLACHODACHÓWKA
Kształt dachuDWUSPADOWY PoddaszeNIEUŻYTKOWE
Rodzaj podłogiSZLICHTA ElewacjaTYNK SILIKONOWY
Rodzaj ogrodzeniaMETALOWE OgrodzeniePEŁNE
Liczba miejsc parkingowych2 Typ parkinguUTWARDZONY
Widok na północJEST Widok na południeJEST
Widok na wschódJEST Widok na zachódJEST
Nr Licencji19016 Osobne WCJEST
Oferta bezpośrednia!
W przypadku tej nieruchomości nasze biuro pobiera wynagrodzenie tylko od sprzedającego

wyszukaj podobne oferty

Skontaktuj się z nami!
Ireneusz Obuchowicz

Ireneusz Obuchowicz

nr licencji: 19016

724019490

Notatnik

Aktualnie w notesie nie znajduje się żadna oferta.

Newsletter

podaj swój adres email, aby otrzymywać informacje o nowych ofertach